新築建売物件情報
創建ホームでは、十和田市・三沢市・おいらせ町・六戸町周辺エリアで住宅の新築や購入をご検討されている方向けに新築建売物件をご用意しております。創建ホームが建築する住宅はすべて熟練された自社大工が施工しており、良質でありながらローコストで提供できる強みがあります。定期的に展示会も開催しておりますので、ぜひ一度創建ホームの家を内覧いただきご検討ください。 分譲地・土地をお探しの方はこちらからご覧ください。
販売中西六番町
物件情報
| 価格 |
2,180万円(土地・建物・カーポート・消費税含む) |
|---|---|
| 面積 | 土地/238.36㎡(72.10坪) 建物/96.30㎡(29.30坪) カーポート/17.40㎡(5.25坪) |
| 所在地 | 十和田市西六番町 |
| 都市計画 | 非線引き区域 |
| 用途地域 | 第一種低層住居専用地域 |
| 建ぺい率 | 50% |
| 容積率 | 80% |
| 地目 | 宅地 |
| 構造 | 木造ガルバリウム鋼板葺2階建て |
| 前面道路 | 公道幅員6m |
| 設備 | 上下水道引き込み済み |
| 建築確認 | 計29号 |
| 交通 | 十和田中入口バス停まで徒歩3分 |
| 学区 | 南小学校・十和田中学校 |
| 取引態様 | 代理 売主(株)不動産センター十和田 |
| 備考 | 令和7年11月完成 |
この物件について
●付帯設備
・IHクッキングヒーター
・食器棚
・石油給湯器エコフィール
・エアコン(寒冷地仕様):LDK、居室/各1台(計4台)
・カーテンレール
・ホームタンク
・アスファルト舗装:駐車スペース、アプローチ
・カーポート付き
周辺マップ
販売中東十五番町-O
物件情報
| 価格 |
2,240万円(土地・建物・カーポート・物置・消費税含む) |
|---|---|
| 面積 | 土地/264.05㎡(79.87坪) 建物/102.67㎡(31.00坪) カーポート/17.40㎡(5.25坪) 物置/2.20㎡(0.66坪) |
| 所在地 | 十和田市東十五番町 |
| 都市計画 | 非線引き区域 |
| 用途地域 | 無指定 |
| 建ぺい率 | 70% |
| 容積率 | 200% |
| 地目 | 宅地 |
| 構造 | 木造ガルバリウム鋼板葺2階建て |
| 前面道路 | 私道幅員6ⅿ |
| 設備 | 上下水道引き込み済み |
| 建築確認 | 第72号 |
| 交通 | 東十五番町バス停まで徒歩8分 |
| 学区 | 三本木小・十和田中 |
| 取引態様 | 代理 売主(株)不動産センター十和田 |
| 備考 | 令和7年11月完成 |
この物件について
●付帯設備
・IHクッキングヒーター
・食器棚
・石油給湯器エコフィール
・エアコン(寒冷地仕様):LDK、居室/各1台(計4台)
・カーテンレール
・ホームタンク
・アスファルト舗装:駐車スペース、アプローチ
・物置付き
・カーポート付き
周辺マップ
販売中東十二番町建売
物件情報
| 価格 |
2,295万円(土地・建物・消費税含む) |
|---|---|
| 面積 | 土地/250.68㎡(75.83坪) 建物/102.67㎡(31.00坪) |
| 所在地 | 十和田市東十二番町 |
| 都市計画 | 非線引き区域 |
| 用途地域 | 第一種中高層住居専用地域 |
| 建ぺい率 | 60% |
| 容積率 | 200% |
| 地目 | 宅地 |
| 構造 | 木造ガルバリウム鋼板葺2階建て |
| 前面道路 | 公道幅員6m |
| 設備 | 上下水道引き込み済み |
| 建築確認 | 第543号 |
| 交通 | 東十一番町バス停まで徒歩3分 |
| 学区 | 北園小・十和田東中 |
| 取引態様 | 代理 売主(株)不動産センター十和田 |
| 備考 | 令和7年9月完成 |
この物件について
●付帯設備
・IHクッキングヒーター
・食器棚
・石油給湯器
・FF式石油ストーブ(自動配管)
・ホームタンク
・エアコン(寒冷地仕様):LDK、居室/各1台(計4台)
・カーテンレール
・アスファルト舗装:駐車スペース、アプローチ
周辺マップ
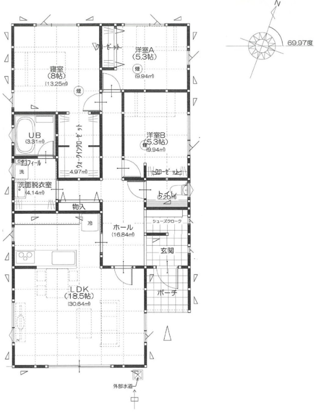
販売中元町西五丁目建売⑦
物件情報
| 価格 |
2,385万円(土地・建物・カーポート・物置・消費税含む) |
|---|---|
| 面積 | 土地/313.12㎡(94.72坪) 建物/95.23㎡(28.75坪) カーポート/17.40㎡(5.25坪) 物置/2.20㎡(0.66坪) |
| 所在地 | 十和田市元町西五丁目 |
| 都市計画 | 非線引き区域 |
| 用途地域 | 無指定 |
| 建ぺい率 | 70% |
| 容積率 | 200% |
| 地目 | 宅地 |
| 構造 | 木造ガルバリウム鋼板葺平屋建て |
| 前面道路 | 公道幅員6m |
| 設備 | 上下水道引き込み済み |
| 建築確認 | 第計13号 |
| 交通 | 薬王堂十和田元町店バス停まで徒歩8分 |
| 学区 | ちとせ小・甲東中 |
| 取引態様 | 代理 売主(株)不動産センター十和田 |
| 備考 | 令和7年9月完成 |
この物件について
●付帯設備
・IHクッキングヒーター
・食器棚
・石油給湯器エコフィール
・エアコン(寒冷地仕様):LDK、居室/各1台(計4台)
・カーテンレール
・ホームタンク
・アスファルト舗装:駐車スペース、アプローチ
・物置付き
・カーポート付き
周辺マップ
商談中元町東五丁目建売
物件情報
| 価格 |
1,990万円(土地・建物・消費税含む) |
|---|---|
| 面積 | 土地/249.95㎡(75.60坪) 建物/ 92.73㎡(28.00坪) |
| 所在地 | 十和田市元町東五丁目 |
| 都市計画 | 非線引き区域 |
| 用途地域 | 第一種中高層住居専用地域 |
| 建ぺい率 | 60% |
| 容積率 | 200% |
| 地目 | 宅地 |
| 構造 | 木造ガルバリウム鋼板葺2階建て |
| 前面道路 | 市道幅員6ⅿ |
| 設備 | 上水道:公営水道20ミリ引き込み済み 下水道:宅地内引き込み済み |
| 建築確認 | 第577号 |
| 交通 | ひがし野団地バス停まで徒歩11分 |
| 学区 | 東小学校・東中学校 |
| 取引態様 | 代理 売主(株)不動産センター十和田 |
| 備考 | 十和田市元町東五丁目 |
この物件について
●付帯設備
・IHクッキングヒーター
・食器棚
・灯油給湯ボイラー
・LDK FFストーブ1台(灯油配管済)
・各居室 ルームエアコン1台
・カーテンレール
・アスファルト舗装工事済(駐車スペース、アプローチ)
周辺マップ
商談中西金崎建売 – 4
物件情報
| 価格 |
2,160万円(土地・建物・物置・消費税含む) |
|---|---|
| 面積 | 土地/ 305.48㎡(92.40坪) 建物/102.67㎡(31.00坪) 物置/ 2.20㎡(0.66坪) |
| 所在地 | 十和田市西金崎 |
| 都市計画 | 非線引き区域 |
| 用途地域 | 無指定 |
| 建ぺい率 | 70% |
| 容積率 | 200% |
| 地目 | 宅地 |
| 構造 | 木造ガルバリウム鋼板葺2階建て |
| 前面道路 | 市道幅員6ⅿ |
| 設備 | 上下水道引き込み済み |
| 建築確認 | 第276号 |
| 交通 | 十和田市立西小学校バス停まで徒歩3分 |
| 学区 | 十和田西小・甲東中 |
| 取引態様 | 代理 売主(株)不動産センター十和田 |
| 備考 | 令和6年12月完成 |
この物件について
●付帯設備
・IHクッキングヒーター
・食器棚
・灯油給湯ボイラー
・LDKFFストーブ1台(灯油配管済)
・各居室ルームエアコン1台
・カーテンレール
・アスファルト舗装工事済(駐車スペース、アプローチ)
・物置付き
周辺マップ
販売中緑ヶ丘五丁目建売 – B
物件情報
| 価格 |
2,170万円(土地・建物・カーポート・物置・消費税含む) |
|---|---|
| 面積 | 土地/213.79㎡(64.67坪) 建物/97.01㎡(29.28坪) カーポート/17.40㎡(5.25坪) 物置/2.20㎡(0.66坪) |
| 所在地 | 十和田市緑ヶ丘五丁目 |
| 都市計画 | 非線引き区域 |
| 用途地域 | 第一種住居地域 |
| 建ぺい率 | 60% |
| 容積率 | 200% |
| 地目 | 宅地 |
| 構造 | 木造ガルバリウム鋼板葺2階建て |
| 前面道路 | 私道幅員6ⅿ |
| 設備 | 上水道引き込み済み、合併浄化槽 |
| 建築確認 | 第406号 |
| 交通 | 町民バス緑ヶ丘二丁目バス停まで徒歩3分 |
| 学区 | 木ノ下小・木ノ下中 |
| 取引態様 | 代理 売主(株)不動産センター十和田 |
| 備考 | 令和7年4月完成 |
この物件について
●付帯設備
・IHクッキングヒーター
・食器棚
・灯油給湯ボイラー
・LDKFFストーブ1台(灯油配管済)
・各居室ルームエアコン1台
・カーテンレール
・アスファルト舗装工事済(駐車スペース、アプローチ)
・物置付き
・カーポート付き






.jpg)













